Merimbula
Prime Commercial Space for Lease – Hylands Corner, Merimbula
Other
Overview
Unlock the potential of this rare opportunity to secure a prime-positioned commercial space in the absolute heart of Merimbula, right on Hylands Corner – the town’s busiest intersection with all-day foot and vehicle traffic.
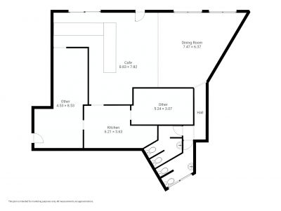
This high-visibility site boasts permanent public outdoor seating out front, offering year-round alfresco dining and unbeatable exposure to locals and tourists alike. With a spacious indoor seating area, the space (aprox.120m2 total) is ideal for a café, restaurant, or boutique eatery looking to make its mark in a thriving coastal town.
The property is set out with a kitchen space and all the necessary amenities including a grease trap, allowing for a smooth setup. Whether you’re launching a new hospitality venture or expanding your brand, this location offers the visibility, layout, and atmosphere to support long-term success.
Set amongst Merimbula’s vibrant retail and dining precinct, surrounded by established businesses, this space enjoys strong pedestrian traffic, making it a smart and strategic choice for any savvy operator.
Spaces like this don’t last. Take advantage of this unique opportunity to establish your business in one of the South Coast’s most sought-after commercial positions just before the busy summer period begins.
Enquire now to arrange an inspection.

